
12月24日 2020年
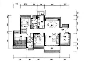
星河天地目前在售户型建面约38-275㎡办公产品,均价约39000元/㎡,共240套,户型建面约36-73㎡商业,均价约8.3万/㎡,共6套。
星河天地二期
光明
购物中心商铺 , 商办楼
毛坯
6.47
40%
21000平米
39000元/m²
深圳星河智善生活股份有限公司
星河天地是星河集团在光明的首个项目,位于光明区光明大道,毗邻地铁6号线光明大街站。 星河天地占据光明区行政文化中心、国家级新城规划,配套丰富完善。 星河天地毗邻高铁光明城站,享龙大、南光双免费高速,3条地铁线直达市各中心区。 一期住宅共6栋房源约1195套,二期办公产品共2栋其中1栋为保障房,办公房源240套。